Chemin Jean-Baptiste Vandelle 7, 1290 Versoix
Village's House of 4.5 rooms - 120 m2 - Garden
REF. 1090.400010
CHF 4’450.- / month
Availability
:
15/02/2026
140
m2
4.5p
2
Located in a green, quiet, residential area of the right bank, nearby the lake, the International Organizations, the public transports and close to all amenities.
Esquisite, typical, little house of village, ideal for a couple.
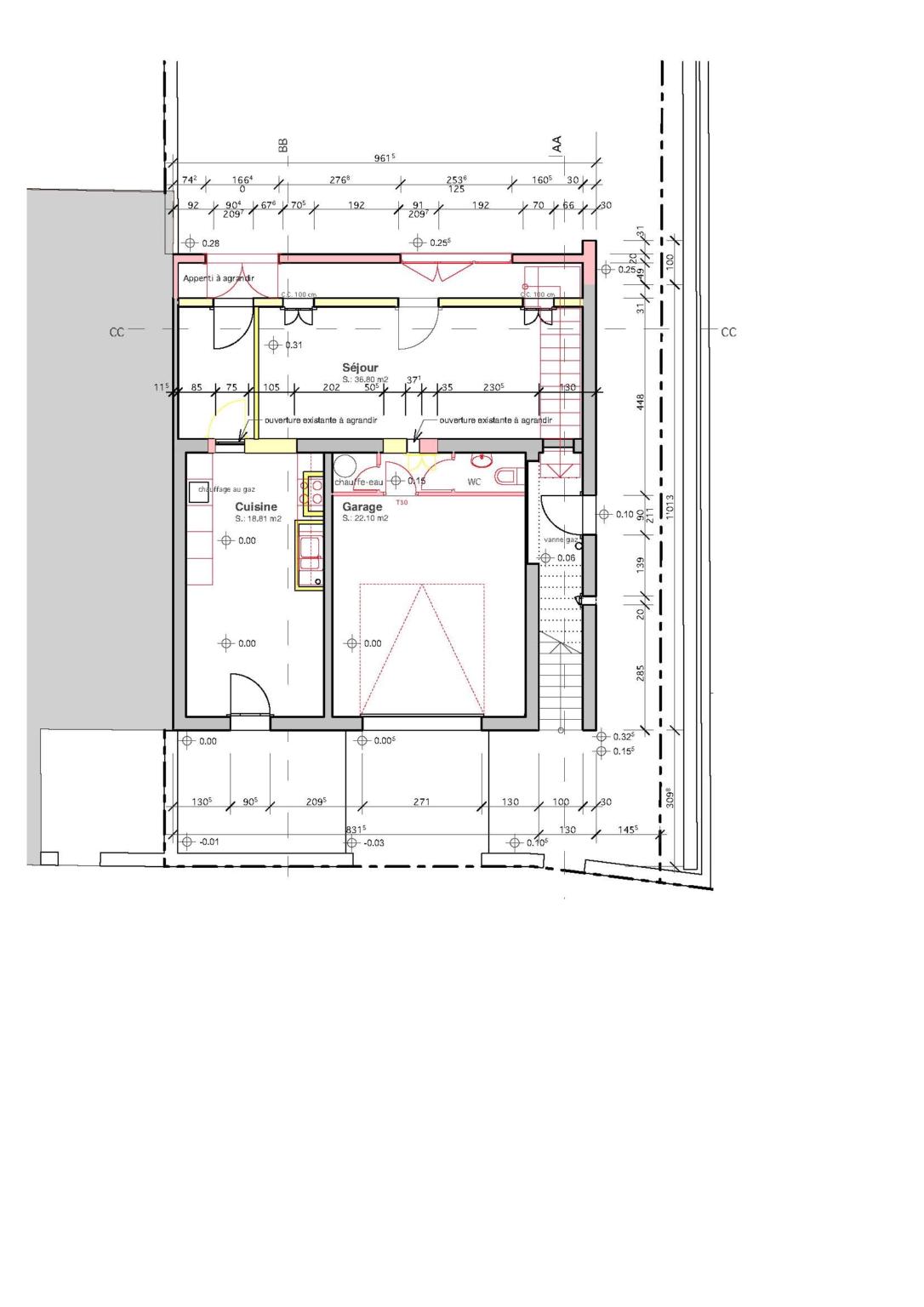
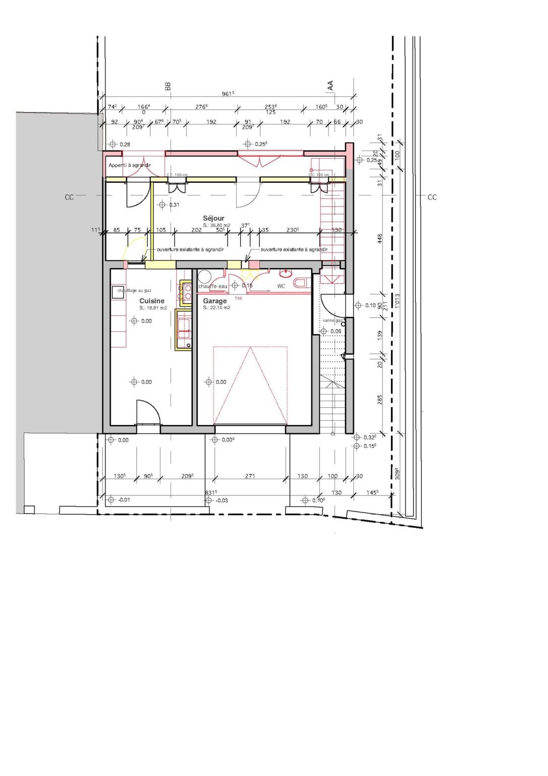
Ground floor : Entrance hall, living/dining-room, fully-equipped kitchen, 1 toilet for guests.
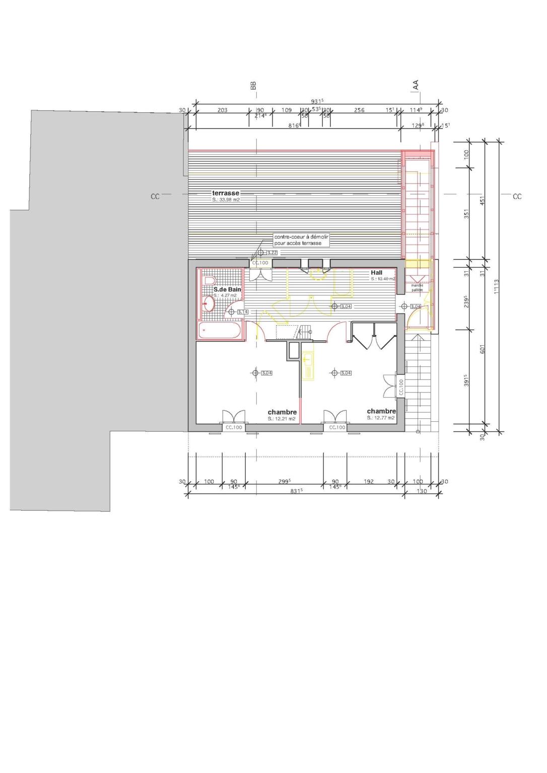
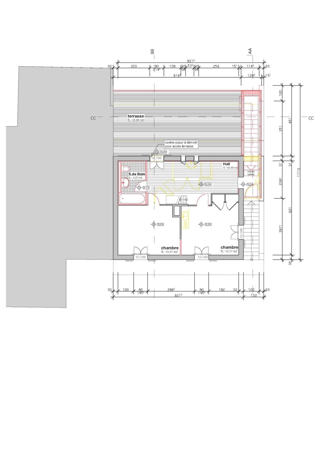
First floor : Corridor, 2 bedrooms, 1 bathroom with a toilet, terrace.
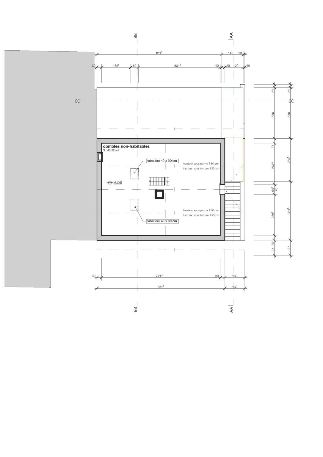
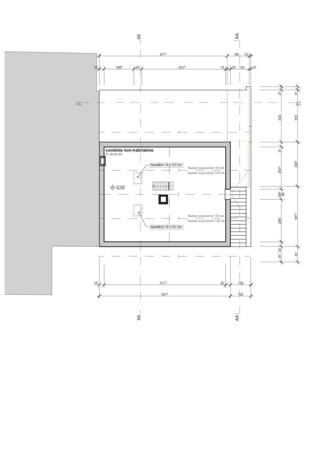
Attic space : Converted.
Garage and laundry with a washing-machine.
Esquisite, typical, little house of village, ideal for a couple.
Ground floor : Entrance hall, living/dining-room, fully-equipped kitchen, 1 toilet for guests.
First floor : Corridor, 2 bedrooms, 1 bathroom with a toilet, terrace.
Attic space : Converted.
Garage and laundry with a washing-machine.
Shed for garden's tools.
Monthly individual loads + Maintenance contracts in addition.
Availability : Immediate.
Your contact information :
"*" indicates required fields