Arcade 130 m2

Rent See other properties
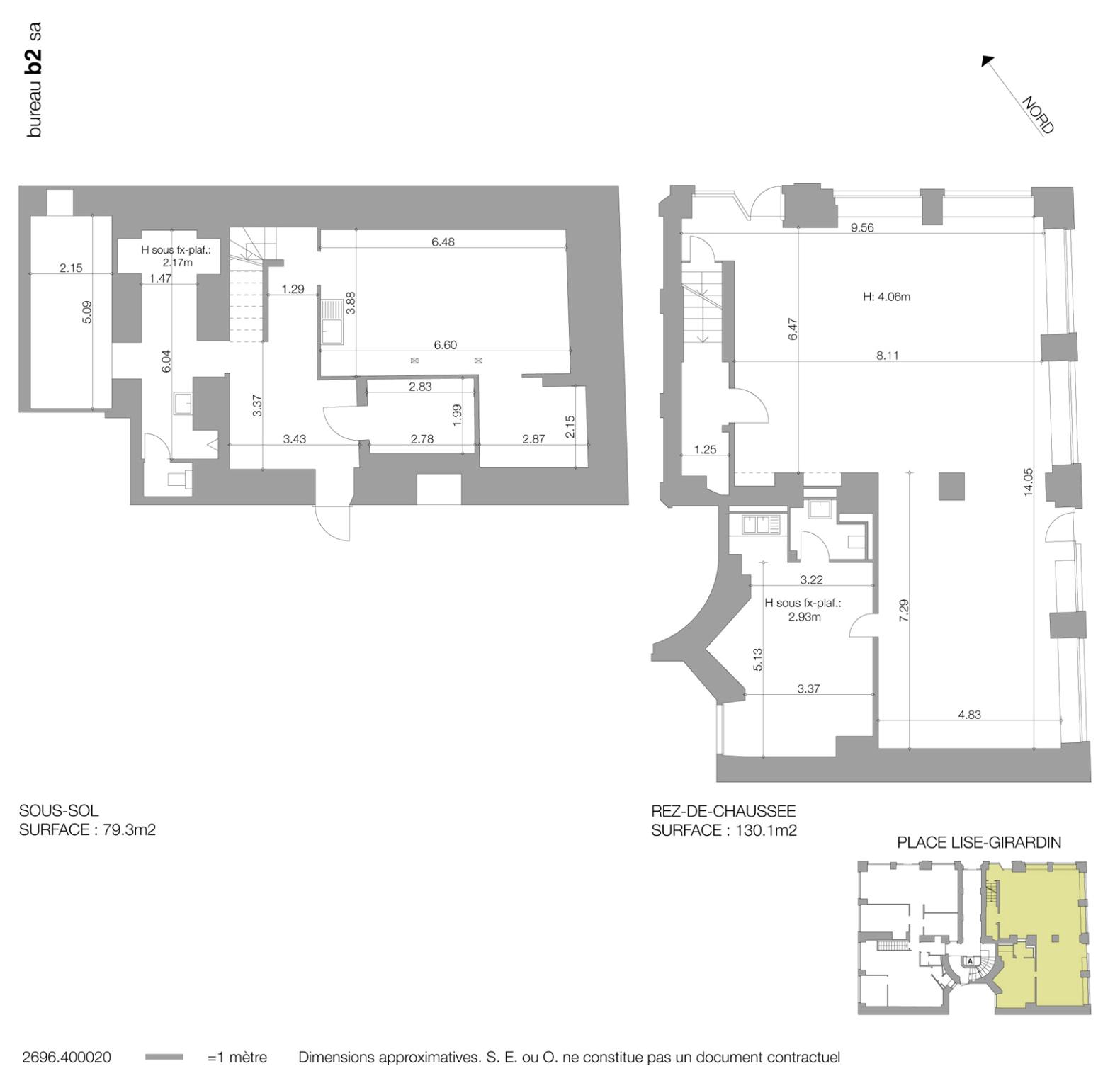
130 m2
In an apartment building a stone's throw from the station and close to all amenities such as public transport, all types of shops and Manor in particular.

Beautiful, bright corner arcade of around 130 m2 with good visibility on a busy right bank street.

This one has two entrances, one on Place Lise-Girardin and the second on Rue des Terreaux-du-Temple.

It also has a basement of approximately 80 m2 useful for storage or that can be converted.

The business must be open to the public.

Your rental guarantee without bank deposit. From CHF 25.-

Smartcaution Calculate your premium

Your rental guarantee without bank deposit. From CHF 25.-

Smartcaution Calculate your premium
More pictures
Plan 1